Descrizione

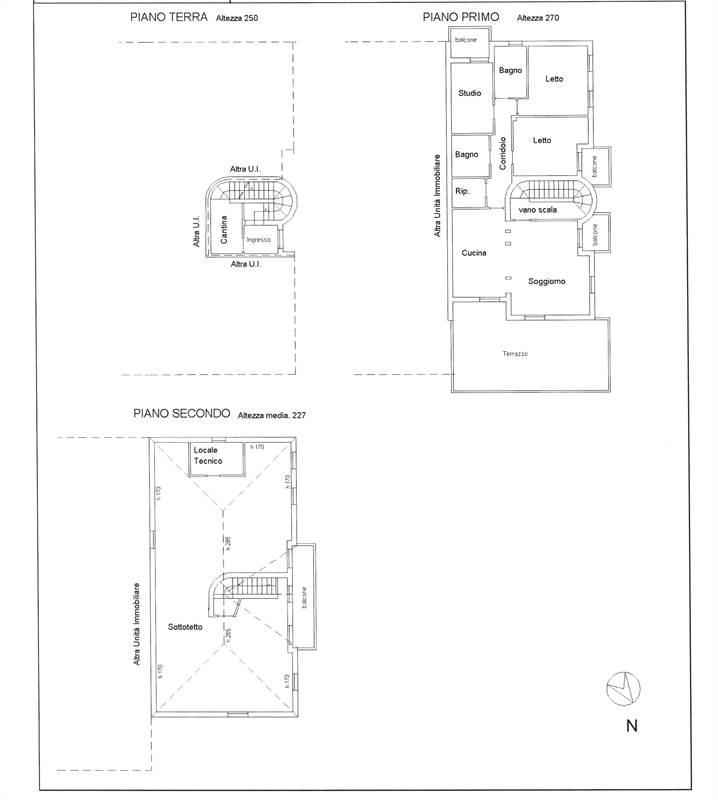
Proponiamo in vendita nel comune di Casalgrande località Veggia, recente costruzione di villa indipendente con adiacente capannone adibito a scuola di ballo. L'unità abitativa è suddivisa su tre livelli dove al piano terra troviamo autorimessa, cantina ed ingresso indipendente con scala interna di collegamento al piano primo; così suddiviso: soggiorno, terrazzo di quarantacinque mq., ulteriore balcone, cucina a vista abitabile, corridoio, due camere matrimoniali di cui una con balcone, camera singola con balcone, due bagni e ripostiglio. Al piano secondo unico vano mansardato open space adibito a secondo appartamento diviso da soggiorno con balcone, angolo cottura e zona notte con camera matrimoniale e bagno. Il Capannone di quattrocentoventi mq. con destinazione artigianale dispone di ingresso indipendente dall'unità abitativa con all'interno relativi spogliatoi, area console e sala da ballo; dispone di impianto fotovoltaico con batterie di accumulo per l'indipendenza energetica fornendo illuminazione e riscaldamento. A completare la proprietà, seicento mq. di area cortiliva che circonda l'immobile ed ulteriori duemilacento mq. di terreno ad uso giardino. La classificazione energetica della villa è in classe D, mentre per il capannone la classe energetica è la E, per tanto tutti e due gli immobili sono già a norma per la nuova normativa europea Case Green.
PER ULTERIORI INFORMAZIONI CONTATTATE I NOSTRI UFFICI.


Caratteristiche principali

Stato Immobile
Buono
Grado
Signorile
Posizione
Periferia
Panorama
Vista Monti
Orientamento
Nord Ovest Sud
Lati Liberi
4
Giardino
Privato
Arredi
Possibilità
Tipo Soggiorno
Soggiorno
Tipo Cucina
Abitabile
Riscaldamento
Autonomo
Tipo Riscaldam.
Caldaia
Tipo Impianto
Radiatori
Fonte Energetica
GPL
Acqua Calda
Autonoma
Infissi
Metallo Doppio Vetro
Serramenti
Buono
Persiana
Oscurante Metallo
Pavim. Giorno
Parquet
Pavim. Notte
Parquet
Pavim. Cucina
Parquet
Pavim. Bagno
Ceramica
Pavimento
Ceramica
Destinazione
Artigianale
Accessori: Antifurto, Aria Condizionata, Camino, Cancello Elettrico, Doppi Vetri, Filo Diffusione, Impianto Fotovoltaico, Impianto Satellitare, Lavanderia, Pannelli Solari, Porta Blindata, Ripostiglio, Zanzariere

Mappa

Via Rio Rocca 5, Casalgrande (RE)

Richiedi informazioni

Invia
Cookie preference