Descrizione

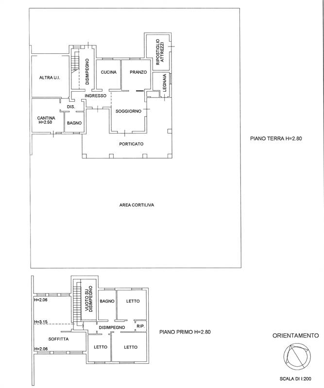
Nella prima campagna, a metà strada tra Reggio Emilia e Scandiano, si propone villa abbinata su lotto di oltre 800 mq. L'immobile sviluppato su due livelli fuori terra, dispone di 600 mq di area cortiliva privata, 80 mq di portico, deposito, cantina e centrale termica; oltre a garage doppio. Edificata a fine anni 70 come unica soluzione abitativa, è stata successivamente riconvertita in due appartamenti con ingressi indipendenti. Al piano terra la prima soluzione abitativa si compone di soggiorno, cucina abitabile, bagno, due camere da letto, e necessita di ristrutturazione. Al primo piano invece il secondo appartamento, ristrutturato integralmente nel 2007, si compone di ampio soggiorno con angolo cottura, tre camere da letto, bagno e ripostiglio.
LIBERO SUBITO


Caratteristiche principali

Stato Immobile
Da Ristrutturare
Grado
Medio
Posizione
Campagna
Panorama
Vista Giardino
Lati Liberi
3
Giardino
Privato
Tipo Soggiorno
Soggiorno
Tipo Cucina
Abitabile
Riscaldamento
Autonomo
Tipo Riscaldam.
Caldaia
Tipo Impianto
Radiatori
Fonte Energetica
Metano
Acqua Calda
Autonoma
Infissi
Legno
Serramenti
Buono
Persiana
Persiana Legno
Pavim. Giorno
Ceramica
Pavim. Notte
Ceramica
Pavim. Cucina
Ceramica
Pavim. Bagno
Ceramica
Accesso Disabili
Nessuna Barriera
Accesso interno disabili
Pieno accesso
Accessori: Camino, Doppi Vetri, Impianto Satellitare, Lavanderia, Ripostiglio, Stufa a Pellet, Veranda

Mappa

b. brecht , Reggio nell'Emilia (RE)

Video

Richiedi informazioni

Invia
Cookie preference