Descrizione

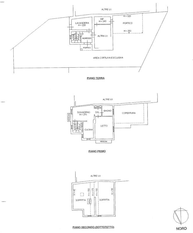
Prime colline di Scandiano, in strada chiusa al traffico, si propone porzione di casa da terra a tetto con ingresso indipendente ed area cortiliva. L'immobile si dispone su due livelli ed è composto al piano terra da ingresso, lavanderia, cantina, autorimessa e porticato; Al piano primo soggiorno con cucina a vista, disimpegno con armadio a muro, una camera da letto matrimoniale e un bagno. Sottotetto accessibile da botola, con due vani soffitta.
Immobile adatto per chi ricerca privacy senza essere troppo distante dai servizi principali di Scandiano. Ottimo investimento da mettere a reddito.
LIBERA SUBITO!

Per maggiori informazioni, e per prenotare la tua visita, contattaci allo 0522/851207, oppure recati presso nostra agenzia di Scandiano in via A. De Gasperi,16.


Caratteristiche principali

Stato Immobile
Buono
Grado
Medio
Posizione
Collina
Panorama
Vista Giardino
Orientamento
Est Nord Ovest
Lati Liberi
3
Giardino
Privato
Arredi
Possibilità
Tipo Soggiorno
Sala da Pranzo
Tipo Cucina
Semi Abitabile
Riscaldamento
Autonomo
Tipo Riscaldam.
Caldaia
Tipo Impianto
Radiatori
Fonte Energetica
Metano
Acqua Calda
Autonoma
Raffrescamento
Non Necessario
Infissi
Legno Doppio Vetro
Serramenti
Buono
Persiana
Tapparella PVC
Pavim. Giorno
Cotto
Pavim. Notte
Parquet
Pavim. Cucina
Cotto
Pavim. Bagno
Ceramica
Isolamento
Non presente
Isolamento termico
Isolamento tetto/sottotetto
Destinato a residenti
Si
Impianto d’irrigazione
No
Accessori: Armadio a Muro, Doppi Vetri, Impianto Satellitare, Lavanderia, Ripostiglio, Veranda

Mappa

via larga , Scandiano (RE)

Richiedi informazioni

Invia
Cookie preference