Descrizione

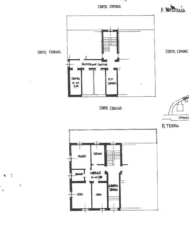
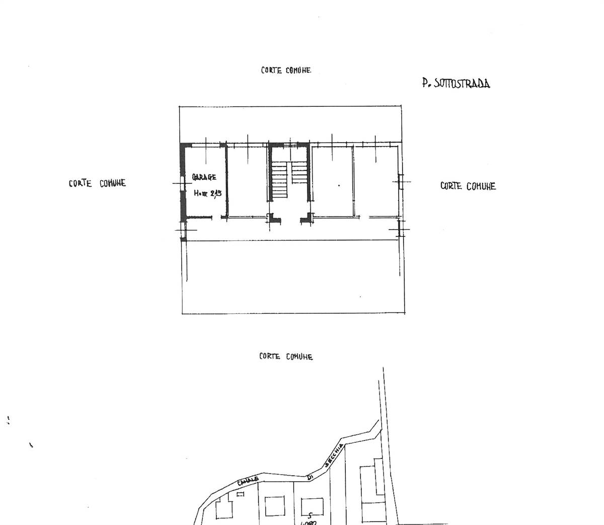
Proponiamo in vendita a due passi dal centro di Scandiano, in palazzina da sole sei unità e con basse spese condominiali; appartamento posto al piano terra rialzato composto da: Ingresso, cucina abitabile, due camere matrimoniali, soggiorno e bagno. Completano la proprietà al piano primo sottostrada cantina e garage. Consigliata la ristrutturazione. LIBERO SUBITO !


Caratteristiche principali

Stato Immobile
Da Ristrutturare
Grado
Economico
Posizione
Centro
Panorama
Vista Aperta
Orientamento
Est Sud Ovest
Lati Liberi
3
Giardino
No
Arredi
Solo Cucina
Tipo Soggiorno
Soggiorno
Tipo Cucina
Abitabile
Riscaldamento
Autonomo
Tipo Riscaldam.
Caldaia
Tipo Impianto
Radiatori
Fonte Energetica
Metano
Acqua Calda
Autonoma
Infissi
Legno
Serramenti
Da Sostituire
Persiana
Tapparella PVC
Pavim. Giorno
Ceramica
Pavim. Notte
Ceramica
Pavim. Cucina
Ceramica
Pavim. Bagno
Ceramica

Mappa

Viale Martiri della Libertà 57, Scandiano (RE)

Richiedi informazioni

Invia
Cookie preference